Woonoppervlakte
Circa 90 m²
Perceeloppervlakte
Circa 143 m²
Bouwjaar
Gebouwd in 1986
Aantal kamers
5 kamers (4 slaapkamers)

Het Hof 43

4751 JK, Oud Gastel (Noord-Brabant)

Welkom aan Het Hof 43, gelegen in een rustige wijk in het charmante Oud Gastel. Deze instapklare eengezinswoning combineert comfort, licht en sfeer met een verrassend ruime indeling. Wat deze woning uniek maakt? Denk aan een lichte en gezellige woonkamer, een open leefkeuken met volop ruimte voor een grote eettafel, vier slaapkamers, een nette badkamer, en als kers op de taart: een gezellige tuin met overkapping, perfect voor lange zomeravonden. Plan snel die bezichtiging in, want dit huis wil je niet missen!

Entree
Je komt binnen via de groene en verzorgde voortuin. Parkeren kan gewoon aan de straat, en dat is lekker praktisch. De hal is keurig afgewerkt en geeft toegang tot het toilet, de meterkast en de gezellige woonkamer.

Wonen & Koken
De woonkamer is heerlijk licht dankzij de grote raampartijen. De ruimte is knus maar biedt volop mogelijkheden voor een grote hoekbank of een speelse inrichting. Vanuit de woonkamer is er toegang tot de trap naar boven. De open leefkeuken aan de achterzijde is ruim, licht en netjes afgewerkt. Hier heb je alle ruimte voor een grote eettafel en is er direct toegang tot de tuin via de achterdeur. De keuken is voorzien van diverse inbouwapparatuur en klaar voor veel kookplezier.

Slapen, Dromen & Douchen
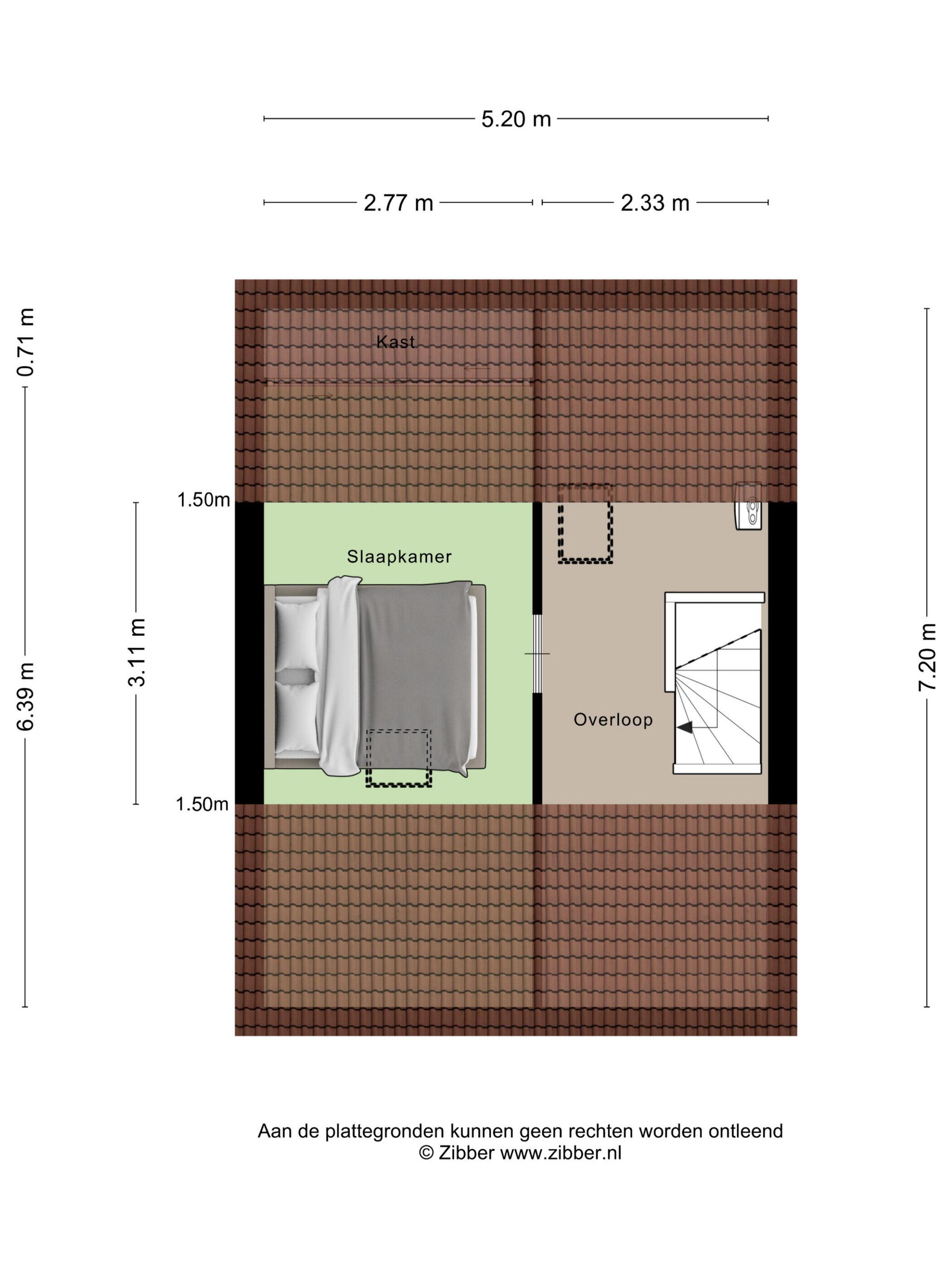
Op de eerste verdieping zijn er drie ruime en lichte slaapkamers, waaronder een royale master bedroom. De kamers zijn netjes afgewerkt en ideaal in te richten als kinder-, werk- of logeerkamer. De badkamer is verzorgd en voorzien van witte wandtegels, een inloopdouche, wastafelmeubel en tweede toilet, alles wat je nodig hebt in deze frisse, functionele ruimte. Via een vaste trap bereik je de zolder. Hier vind je een ruime voorzolder en een grote vierde slaapkamer met veel lichtinval dankzij het royale dakkapelraam. Perfect als extra slaapkamer, thuiskantoor of creatieve hobbyruimte.

Tuinieren, Zonnen & Genieten
De achtertuin is een sfeervolle plek met veel groen, meerdere terrassen en een gezellige overkapping. Of je nu wilt loungen, tuinieren of dineren – hier kan het allemaal. Achter in de tuin staat een stenen berging en er is een achterom, wel zo handig voor de fiets!

De omgeving
Oud Gastel is een fijne plek om te wonen: dorps, groen en gezellig. Alles wat je nodig hebt is dichtbij: van scholen en supermarkten tot sportvoorzieningen. Bovendien ben je binnen no-time in het centrum van Roosendaal of op de snelweg richting Breda, Rotterdam of Antwerpen.

Toelichtingsclausule NEN2580:
De Meetinstructie is gebaseerd op de NEN2580. De Meetinstructie is bedoeld om een meer eenduidige manier van meten toe te passen voor het geven van een indicatie van de gebruiksoppervlakte. De Meetinstructie sluit verschillen in meetuitkomsten niet volledig uit, door bijvoorbeeld interpretatieverschillen, afrondingen of beperkingen bij het uitvoeren van de meting.

Plattegronden

Overdracht

Vraagprijs
€ 325.000 k.k.
Status
Verkocht
Aanvaarding
In overleg

Bouw

Object type
Eengezinswoning, tussenwoning
Soort bouw
Bestaande bouw
Bouwjaar
1986
Soort dak
Zadeldak

Oppervlakte en inhoud

Woonoppervlakte
90 m²
Perceeloppervlakte
143 m²
Inhoud
320 m³
Externe bergruimte
6 m²
Gebouwgeb. buitenruimte
17 m²

Indeling

Aantal kamers
5 kamers (4 slaapkamers)
Aantal badkamers
1 badkamer
Badkamervoorzieningen
Toilet, douche, wastafel
Aantal woonlagen
3 woonlagen

Energie

Energielabel
A
Energielabel registratie
07-12-2020
Isolatie
Driedubbel glas
Verwarming
Cv-ketel
Warm water
Cv-ketel
Cv ketel
Remeha tzerra ace 24c gas gestookt uit 2023 (eigendom)

Buitenruimte

Ligging
In woonwijk
Tuin
Achtertuin, voortuin

Bergruimte

Schuur / berging
Vrijstaand steen

Garage

Soort garage
Geen garage

Parkeergelegenheid

Soort parkeergelegenheid
Openbaar parkeren

Energieverbruik in Oud Gastel

Energielabel deze woning

Energielabel A

Publicatie energielabel: 07-12-2020

Stroomverbruik per jaar

2870 kWh

(Gemiddelde tussenwoning in Oud Gastel)

Gasverbruik per jaar

1080 m³

(Gemiddelde tussenwoning in Oud Gastel)

* Cijfers zijn afkomstig van het CBS en bedoeld als indicatie en kunnen verschillen voor deze woning

Indicatie hypotheeklasten

Eigen inleg:
Spaargeld / overwaarde

Rente:
Laagste 10-jaars rente

Laagste 10-jaars rente

2,75% - Centraal Beheer Groen... - NHG


3,04% - Argenta Groen Hypothee... - 80%

Laagste 20-jaars rente

3,18% - Argenta Groen Hypothee... - NHG


3,39% - Argenta Groen Hypothee... - 80%

Laagste 30-jaars rente

3,35% - Argenta Groen Hypothee... - NHG


3,56% - Argenta Groen Hypothee... - 80%


Hypotheek:

Bruto maandlasten: € 0 p/m

Netto maandlasten: € 0 p/m

Hoe berekenen we dit?

Het rentepercentage is gebaseerd op de laagste 10 jaars vaste rente voor één hypotheekdeel. De vermelde rente (2.75% met NHG) is gecontroleerd op 06-11-2025. Deze berekening is gebaseerd op een annuïteitenhypotheek die volledig wordt afgelost, waarbij de maandlasten gedurende de gehele looptijd gelijk blijven. De werkelijke rente en netto maandlasten kunnen variëren, afhankelijk van uw persoonlijke situatie en de hypotheekverstrekker. Raadpleeg een financieel adviseur voor een nauwkeurige berekening en advies. Aan deze berekening kunnen geen rechten worden ontleend; het dient enkel als indicatie.

Documentatie

Zonnegrenzen bekijken

Op de kaart

Inwoners in Oud Gastel

Cijfers voor postcodegebied 4751

Totaal aantal inwoners
7245 inwoners
Mannen
50%
Vrouwen
50%

Inwoners in Oud Gastel

Cijfers voor postcodegebied 4751

tot 15 jaar
14%
15 tot 25 jaar
11%
25 tot 35 jaar
20%
45 tot 65 jaar
32%
65 en ouder
22%

Huishoudens in Oud Gastel

Cijfers voor postcodegebied 4751

Eenpersoons zonder kinderen
24%
Meerpersoons zonder kinderen
39%
Huishoudens zonder kinderen
63%

Huishoudens in Oud Gastel

Cijfers voor postcodegebied 4751

Huishoudens met één kind
6%
Huishoudens met meerdere kinderen
31%
Huishoudens met kinderen
37%

Woningen in Oud Gastel

Cijfers voor postcodegebied 4751

Woningen voor 1945
18%
Woningen tussen 1945 en 1965
16%
Woningen tussen 1965 en 1975
18%
Woningen tussen 1975 en 1985
13%
Woningen tussen 1985 en 1995
14%

Woningen in Oud Gastel

Cijfers voor postcodegebied 4751

Woningen tussen 1995 en 2005
9%
Woningen tussen 2005 en 2015
8%
Woningen na 2015
4%
Huurwoningen
20%
Koopwoningen
80%

Overige in Oud Gastel

Cijfers voor postcodegebied 4751

Gemiddelde WOZ waarde
€ 276.000,-
Personen onder de 65 met uitkering
5%

Overige in Oud Gastel

Cijfers voor postcodegebied 4751

Adressen per km²
584
Stedelijkheid (schaal 1 op 5)
40%
Postcode kaart 4751 Gemeente kaart halderberge

Korte feiten over Oud Gastel

Oud Gastel (Brabants: Gastel/Gestel) (niet te verwarren met Oud-Gestel & Gastel) is een dorp in de gemeente Halderberge in de Nederlandse provincie Noord-Brabant. Omliggende plaatsen zijn Stampersgat, Oudenbosch, Roosendaal en Kruisland.

Indien u vragen heeft of u wilt een bezichtiging inplannen, dan kunt u gebruik maken van het formulier hiernaast. Er zal daarna op korte termijn contact met u worden opgenomen.

Vakidioten met een passie voor vastgoed

Bij C&R Makelaars draait alles om jou en je woning. Wij zijn een frisse, energieke generatie makelaars met een passie voor mensen en de woningmarkt.

We geloven in een persoonlijke aanpak zonder poespas: eerlijk, transparant en altijd met een flinke dosis enthousiasme. Het verkopen van je huis is een belangrijke stap, en daarom begeleiden we je op een manier die bij jou past, van begin tot eind.

Met onze diepgaande kennis van de lokale markt geven we je waardevol advies dat perfect aansluit bij jouw situatie én dat van potentiële kopers.

Daarnaast staat ons creatieve team van vastgoedmarketeers klaar om jouw woning in de schijnwerpers te zetten. Met slimme en doordachte strategieën zorgen we ervoor dat je huis opvalt en het maximale resultaat behaalt.

Jouw tevredenheid is ons einddoel. We zetten alles op alles om je verwachtingen te overtreffen. Nieuwsgierig naar ons team? Klik op de button hieronder en maak kennis met ons!

Vakidioten met een passie voor vastgoed
Reviews C&R Makelaars

Het Hof 43, Oud Gastel

€ 325.000 k.k. - Verkocht

Helaas, deze woning is verkocht!

Net te laat, deze woning is al verkocht. Laat een zoekopdracht bij ons achter zodat wij u direct kunnen helpen wanneer er nieuw aanbod beschikbaar komt.